龍門加工中心的外形體積較大,床身較長,從外形上看和龍門銑床有些相似,這類機床不像立、臥式加工中心那樣簡單的安裝即可使用,這類機床一般在制造時就是在打好水平的狀態下進行安裝的,所以要求用戶在使用前必須要打好機床水平后才能使用,并且要在正常使用半年左右后還要復查一遍水平是否有變化。為了保持龍門加工中心的加工的精度和使用壽命,這就對安裝地基提出了嚴格的要求,本文就簡單介紹一下,龍門加工中心地基安裝要求:

一、龍門加工中心地基安裝應符合下列要求:
1、混凝土不應有裂縫。
2、混凝土*低壓強為1800牛每平方厘米,抗拉強度為180牛每平方厘米。
3、地面的承受強度應大于每平方米5噸。
4、混凝土周圍應加防震材料。
二、龍門加工中心地基的選擇要求
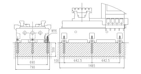
按照地基安裝圖,選擇適當的空間進行安裝龍門加工中心,安裝地基的穩定性不應對機床的精度產生負面影響,但是為防止其他機械裝置的振動通過地面對本機床有影響,地基應有絕對的穩定性和隔震性。
三、龍門加工中心在打地基時應考慮下述幾點要求:
1、為便于維修及檢查,應在機床安裝位置旁保留適當空間。
2、為了安裝、維護龍門加工中心,應使機床頂部與吊車之間至少有500mm的空間。
3、應提供有足夠的空間來松、夾工件。
4、當安裝龍門加工中心時,應有足夠的空間移動來安裝機床。